Un+Duplex+1920+a+Montr%C3%A9al+completamente+rinnovato
ideepraticheit
/un-duplex-1920-a-montreal-completamente-rinnovato/amp/

Un Duplex 1920 a Montréal completamente rinnovato

Published by
Ideepratiche.it

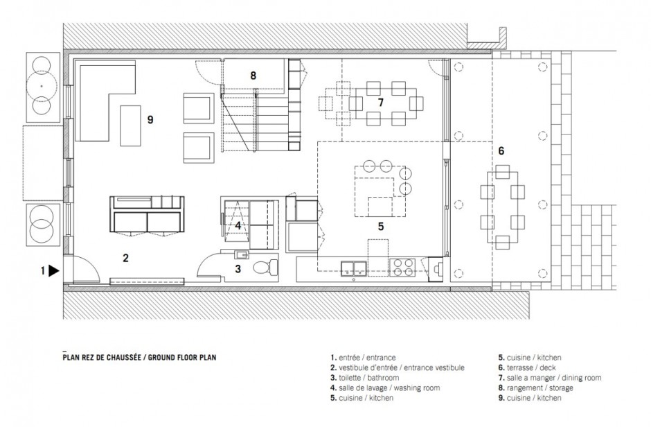
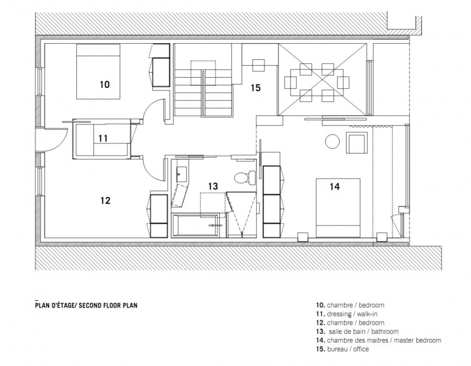
Dopo che i clienti hanno deciso che volevano trasformare il loro duplex del 1920 su due piani in un ambiente confortevole e luminoso, hanno contattato nature humaine di affrontare questo progetto. I proprietari hanno chiesto tre camere da letto e uno spazio ufficio al secondo piano. 

La casa sembrava abbastanza noiosa e c’erano un sacco di cose che avevano bisogno di un aggiornamento. Per cominciare, la parte posteriore della casa è stata completamente trasformata. Lo spazio di vita è diventato più trasparente e più collegato con l’esterno. “L’accento sulla trasparenza crea connessioni visive e fisiche costanti con il cortile di casa.” 

“Un volume di cedro rivestito, contenente la camera da letto matrimoniale, pugni attraverso il muro esterno di vetro e cantelivers sopra il cortile, riparo sotto il patio. Il rivestimento in legno continua attraverso l’interno, sfumando i confini tra interno ed esterno. “Il piano terra ospita un soggiorno e una cucina con una pianta aperta, orientata verso il cortile. Arioso e confortevole, l’interno è ben organizzato, rispettando una semplice linea di design. Per creare un ambiente accogliente e un ambiente caldo, gli architetti hanno deciso di utilizzare il legno come materiale principale.

Fonte:  www.freshome.com

Recent Posts

  • Spazi della casa

Guardaroba: pochi soldi, grande soluzione da Ikea che renderà tutto più chic

Vuoi creare uno spazio in cui riporre sia scarpe che vestiti ma non vuoi spendere…

1 anno ago
  • Decor & Design

Presa a binario, la soluzione di cui hai bisogno e che non sapevi di volere in casa. È modernissima

Volete collegare diverse cose tutte nella stessa zona di casa ma non avete abbastanza prese?…

1 anno ago
  • Spazi della casa

Dove posizionare il letto: cosa influisce sul nostro riposo senza che ce ne accorgiamo

Avete problemi a riposare quando vi mettete a letto e non riuscite a capire il…

1 anno ago
  • Case da sogno

Flavio Briatore, come addobberà quest’anno la sua bellissima casa per Natale

Com'è la casa del multimilionario Flavio Briatore? Il gusto eccentrico nell'arredamento dell'imprenditore, si rispecchierà anche…

1 anno ago
  • Decor & Design

Tre decorazioni per la casa da evitare se vuoi un ambiente elegante, ma soprattutto minimal

Vuoi arredare casa ma non vuoi ottenere un effetto pacchiano? Ci sono alcuni elementi da…

1 anno ago
  • Decor & Design

Centrotavola natalizi d’effetto e fai da te: riciclo si, ma con eleganza

Chi l'ha detto che per un centrotavola natalizio bisogna spendere molto? Ti basteranno poche cose…

1 anno ago